- Woonoppervlakte
- Circa 74 m²
- Perceeloppervlakte
- Circa 80 m²
- Bouwjaar
- Gebouwd in 1921
- Aantal kamers
- 4 kamers (3 slaapkamers)
Sfeervol jaren ’20 woonhuis met verrassend veel ruimte én een zonnige tuin!
Achter de karakteristieke boog van ‘Onder de Linden’, tussen de charmante gevels van de Voorbroodstraat, ligt deze goed onderhouden hoekwoning uit de jaren ’20. Een huis met sfeer, licht en verrassend veel ruimte: 100 m² in totaal. Denk aan een ruime woonkamer, twee volwaardige slaapkamers op de eerste verdieping, een fijne zolderkamer over de volle breedte van de woning, een praktische (stahoogte) kelder met daglichttoetreding én een zonnige achtertuin met achterom.
De woning is met liefde en aandacht onderhouden en is direct te betrekken.
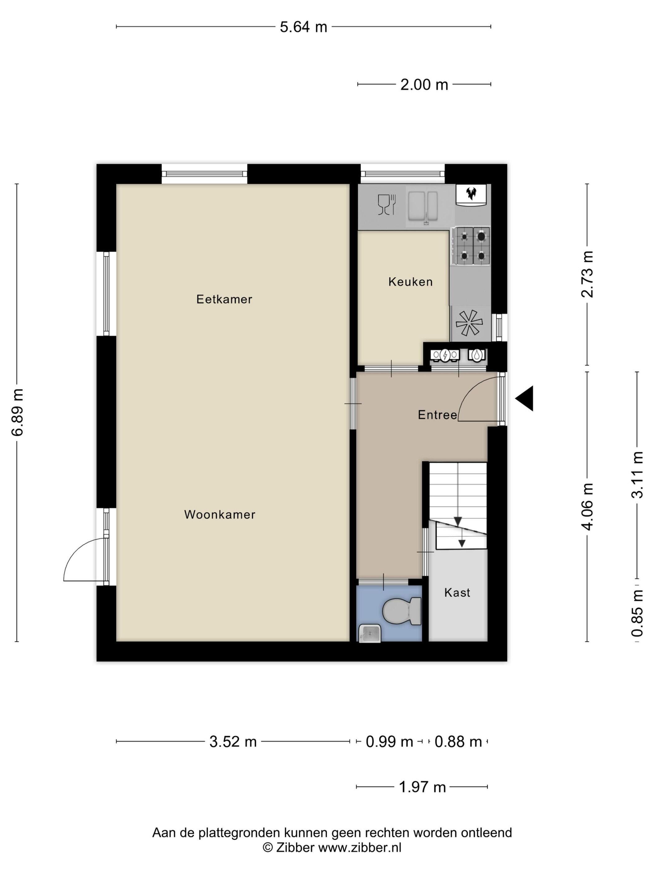
Indeling
Begane grond
De lichte woonkamer met eikenhouten vloer kijkt uit op de groene achtertuin. Aan de voorzijde ligt de dichte keuken in hoekopstelling. De centrale hal is ruim en licht, en biedt toegang tot het toilet, de trap naar de eerste verdieping én de kelderkast met doorgang naar de kelder.
Kelder
Onder de woning bevindt zich een ruime kelder, opgedeeld in twee praktische ruimtes met stahoogte. Via een rooster en een verdiept gelegen koekoek aan de tuinzijde komt er subtiel daglicht en frisse lucht naar binnen – ideaal voor opslag of als hobbyruimte.
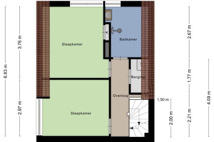
Eerste verdieping
Ruime overloop met vaste kast met aansluiting voor een wasmachine. Er is voldoende ruimte om hier ook een droger te plaatsen. Twee ruime slaapkamers, waarvan één met vaste kast en één met een dakkapel. De badkamer is voorzien van een douche, een wastafel en er is ruimte voor het plaatsen van een bad.
Tweede verdieping
Via een vaste trap bereik je een lichte zolderkamer – perfect als extra slaapkamer, werkruimte of creatieve studio. Er is al een voorbereiding aanwezig voor een wastafel.
Tuin
De zonnige tuin is sfeervol ingericht met een natuurstenen terras en een speels begroeide tuin. Een heerlijke plek voor een kop koffie in de ochtend, omringd door vogelgezang, of om ’s avonds in alle rust van buiten te genieten. Achterom aanwezig.
Alles in de buurt
De woning is een heerlijke plek om thuis te komen én om te genieten van je omgeving. Of je nu snel nog even naar de supermarkt (AH) om de hoek wil, een leuk terrasje wil bezoeken, een wandeling in de natuur wil maken, alles is dichtbij. En met de fiets sta je binnen 5 minuten in het Sonsbeekpark, of in het centrum van Arnhem als je liever de drukte opzoekt. Moet je wat verder weg, dan is er een handige verbindingsweg naar de snelweg en ook op het centraal station ben je zo.
Dat is nog niet alles want in de weekenden spelen je kinderen heerlijk buiten bij de grote speeltuin “de Leuke Linde” en geniet je van het diverse winkelaanbod en de horecagelegenheden die zich in deze hippe wijk bevinden. Park Klarenbeek, Park Sonsbeek en centraal station Arnhem liggen op korte fietsafstand en na enkele minuten rijden bevindt je je op de A12/A50.
Een sfeervolle en verrassend ruime jaren ’20 woning op een fijne locatie.
Vraagprijs € 350.000,- k.k.
Aanvaarding in overleg Lees de volledige omschrijving
Overdracht
- Vraagprijs
- € 350.000 k.k.
- Status
- Verkocht onder voorbehoud
- Aanvaarding
- In overleg
Bouw
- Object type
- Eengezinswoning, 2-onder-1-kapwoning
- Soort bouw
- Bestaande bouw
- Bouwjaar
- 1921
- Soort dak
- Zadeldak bedekt met pannen
Oppervlakte en inhoud
- Woonoppervlakte
- 74 m²
- Perceeloppervlakte
- 80 m²
- Inhoud
- 348 m³
Indeling
- Aantal kamers
- 4 kamers (3 slaapkamers)
- Aantal badkamers
- 1 badkamer en 1 apart toilet
- Badkamervoorzieningen
- Douche en wastafel
- Aantal woonlagen
- 3 woonlagen en een kelder
- Voorzieningen
- Dakraam, glasvezelkabel, natuurlijke ventilatie, en TV kabel
Energie
- Energielabel
- E
- Verwarming
- Cv-ketel
- Warm water
- Cv-ketel
- Cv ketel
- Atag (gas gestookt combiketel uit 2024, eigendom)
Buitenruimte
- Ligging
- Aan bosrand, aan rustige weg, beschutte ligging, in woonwijk en vrij uitzicht
- Tuin
- Zijtuin
- ligging tuin
- Gelegen op het westen en
Bergruimte
- Schuur / berging
- Inpandig
Parkeergelegenheid
- Soort parkeergelegenheid
- Openbaar parkeren
Energieverbruik in Arnhem
Energielabel deze woning
Energielabel E
Publicatie energielabel:
Stroomverbruik per jaar
(Gemiddelde twee onder een kap in Arnhem)
Gasverbruik per jaar
(Gemiddelde twee onder een kap in Arnhem)
* Cijfers zijn afkomstig van het CBS en bedoeld als indicatie en kunnen verschillen voor deze woning
Indicatie hypotheeklasten
Eigen inleg:
Spaargeld / overwaarde
Rente:
Laagste 10-jaars rente
Laagste 10-jaars rente
2,75% - Centraal Beheer Groen... - NHG
3,05% - Centraal Beheer Groen... - 80%
Laagste 20-jaars rente
3,23% - Argenta Groen Hypothee... - NHG
3,44% - Argenta Groen Hypothee... - 80%
Laagste 30-jaars rente
3,4% - Argenta Groen Hypotheek... - NHG
3,61% - Argenta Groen Hypothee... - 80%
Hypotheek:
Bruto maandlasten: € 0 p/m
Netto maandlasten: € 0 p/m
Hoe berekenen we dit?
Het rentepercentage is gebaseerd op de laagste 10-jaars vaste rente voor één hypotheekdeel. De vermelde rente (2.75% met NHG) is gecontroleerd op 22-10-2025. Deze berekening is gebaseerd op een annuïteitenhypotheek die volledig wordt afgelost, waarbij de maandlasten gedurende de gehele looptijd gelijk blijven. De werkelijke rente en netto maandlasten kunnen variëren, afhankelijk van uw persoonlijke situatie en de hypotheekverstrekker. Raadpleeg een financieel adviseur voor een nauwkeurige berekening en advies. Aan deze berekening kunnen geen rechten worden ontleend; het dient enkel als indicatie.
Documentatie
Kadastrale kaart
Leefomgeving
Plattegronden PDF
Vragenlijst woning 2023
Lijst van zaken
Energielabel-E
Kadastrale-kaart-arnhem-r-5763
Meetrapport
BAG uittreksel
WOZ waarderapport
Brochure
Bezoek onze website
Bezichtiging
Bod uitbrengen
Waardebepaling
Zoekopdracht
Alles downloaden
Zonnegrenzen bekijken
Op de kaart
Inwoners in Arnhem
Cijfers voor postcodegebied 6822
- Totaal aantal inwoners
- 7225 inwoners
- Mannen
- 50%
- Vrouwen
- 50%
Inwoners in Arnhem
Cijfers voor postcodegebied 6822
- tot 15 jaar
- 15%
- 15 tot 25 jaar
- 11%
- 25 tot 35 jaar
- 35%
- 45 tot 65 jaar
- 28%
- 65 en ouder
- 11%
Huishoudens in Arnhem
Cijfers voor postcodegebied 6822
- Eenpersoons zonder kinderen
- 56%
- Meerpersoons zonder kinderen
- 18%
- Huishoudens zonder kinderen
- 74%
Huishoudens in Arnhem
Cijfers voor postcodegebied 6822
- Huishoudens met één kind
- 10%
- Huishoudens met meerdere kinderen
- 15%
- Huishoudens met kinderen
- 25%
Woningen in Arnhem
Cijfers voor postcodegebied 6822
- Woningen voor 1945
- 58%
- Woningen tussen 1945 en 1965
- 1%
- Woningen tussen 1965 en 1975
- 4%
- Woningen tussen 1975 en 1985
- 17%
- Woningen tussen 1985 en 1995
- 5%
Woningen in Arnhem
Cijfers voor postcodegebied 6822
- Woningen tussen 1995 en 2005
- 3%
- Woningen tussen 2005 en 2015
- 6%
- Woningen na 2015
- 6%
- Huurwoningen
- 70%
- Koopwoningen
- 30%
Overige in Arnhem
Cijfers voor postcodegebied 6822
- Gemiddelde WOZ waarde
- € 194.000,-
- Personen onder de 65 met uitkering
- 18%
Overige in Arnhem
Cijfers voor postcodegebied 6822
- Adressen per km²
- 3579
- Stedelijkheid (schaal 1 op 5)
- 100%
Korte feiten over Arnhem
Arnhem is een stad en gemeente in Nederland en de hoofdstad van de provincie Gelderland. De gemeente telt 164.096 inwoners per 31 januari 2022 (bron: CBS) en is daarmee de twaalfde gemeente van Nederland.
Moniek Koenders Makelaardij
Toen ik 16 jaar was heb ik tijdens een snuffelstage kennis gemaakt met de makelaardij, dit meteen bij een klein gerenommeerd kantoor in Arnhem. Daar kreeg ik al snel de kans om in de ‘binnendienst’ mee te draaien. Dit was nog de tijd waar mobiele telefoons en het internet ontbrak maar waar we ’s ochtends vroeg bij de fax zaten om het nieuwste aanbod af te wachten en kopers en verkopers te informeren. Het grote enthousiasme was gewekt! Na mijn middelbare school ben ik de makelaardij opleiding gaan doen en blijven werken bij het kantoor van mijn snuffelstage. Geweldig om theorie en praktijk zo naast elkaar te mogen ervaren.
Na het beëdigen als makelaar-taxateur en aangesloten bij de grootste vakgroep van de NVM zit ik inmiddels alweer 30 jaar in het vak!
Doordat ik al zo lang actief ben in Arnhem en omgeving in de aankoop, verkoop en taxaties van woningen ben ik een ware Arnhem kenner. Uiteraard ben ik mezelf blijven ontwikkelen en ben als nevenactiviteit ook actief geweest als hypotheekadviseur en was de eerste vrouwelijke voorzitter van de afdeling Arnhem van de NVM. Hierdoor weet ik goed waar we het samen over hebben.
Op zoek naar ‘een nieuwe woonplek’ en ‘de verkoop van je thuis’ zijn life changing momenten en moeten we niet onderschatten. Door dit samen op te pakken met een no-nonsense advies en korte lijnen komen we tot hele mooie dingen. Ik noem dit ook wel actief zijn als jullie ‘wooncoach’ om samen de gewenste doelen te bereiken. Uw grootste bezit verdient de juiste volle aandacht!!
Vol gedrevenheid en kennis van de markt gaan we samen de trajecten aan en geef ik als een ‘wooncoach’ mijn advies op de door u gewenste aanpak.
Als u tijd maakt voor een vrijblijvend gesprek dan kom ik dit graag nader uitleggen en kunnen we samen uw toekomstplannen bespreken.
We spreken elkaar snel!
Moniek Koenders
Nieuwste reviews
-
Wildenborglaan 36 3
Binnen slechts 2,5 maand heeft Moniek mij geholpen bij de succesvolle aankoop van een woning. Een uitzonderlijk vlot en effectief traject.Mo...
-
Graaf Lodewijkstraat 12
Moniek heeft ons goed geholpen met de verkoop van ons huis. Alles verliep vlot en ze is erg betrokken en meedenkend. Een top makelaar!
-
Thorbeckestraat 108
Uitstekende en betrouwbare makelaar! Getipt door een vriendin die een huis had gekocht met Moniek als aankoopmakelaar. We hebben ruim een ja...